營銷總監:靳經理 18653877118
銷售部:張經理 18653877126
郵箱: admin@cnshelley.com
shelley@cnshelley.com
銷售總部: 山東泰安長城路96號天龍國際大廈B座1405室。
工廠地址:山東省泰安市岱岳區北集坡街道海納街789號
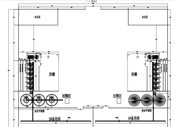
糧食的儲存靠庫房,山東雪萊糧倉智能科技有限公司是國內領先的糧食倉儲解決方案供應商,致力于為全球糧食存儲用戶提供一站式倉儲服務。本項目鋼板倉由6臺1500噸鋼板倉組成,配合烘干中心使用,兼具干糧的儲存和轉運功能,配套提升設備、輸送設備、通風系統、糧溫監測系統,設備和鋼結構表層全部采用鍍鋅工藝,防銹免維護,鋼板倉倉體采用275g/㎡雙面鍍鋅板裝配而成,倉體倉身螺栓全部使用用10.9級和8.8級高強達克羅鍍鋅螺栓,可保證鋼板倉使用年限達到25年以上。
本項目包含糧食烘干中心、糧食儲備庫房、烘干后的干糧(小麥、玉米都可)進儲備庫房進行存儲,輸送帶也可直接將干糧送入鋼板倉進行儲存轉運,儲存后可過篩裝車,實現糧食從收割、運輸、清理、烘干、儲存、中轉甚至加工一體化功能,全程高度自動化、電控化、機械化,此項目建設完成,將成為萊西市新型農業產業標桿。此項目筒倉方案,簡約、大氣、實用。


項目方案的合理性:
(1)本次項目方案是我公司根據客戶項目現場,結合現場總平規劃,進行的優化設計,不僅節約土地占用,更兼具操作的實用性。
(2)與烘干中心搭配使用,效果佳,不僅可以長時儲存,還可短時轉運,降低儲存、轉運成本,減少人工。
(3)整個項目工藝全部是電控化、機械化操作,簡單、高效、便捷。
(4)環保、低碳,符合新農村、新農業、新農機的發展趨勢。


鋼板倉不是新興產品,在糧食配套領域的發展已經有幾十年的歷史,但與新農業新農村新農機的結合,才剛剛起步,相信客戶與雪萊的合作,會成為當下農業發展的標桿,必將引領農村合作新潮流。符合萊西農業向規模化、標準化、高效化、生態持續化發展的方向需求。
安裝:自合同簽訂以來,山東雪萊嚴格按照合同履行生產,于23年4月23日進場安裝,雪萊的安裝隊伍,擁有15年以上的鋼板倉安裝施工經驗,安裝隊長和項目經理都有20年以上的行業從業經歷,隊伍下屬的作業人員,都是公司精心培養,擁有焊工證、熱切割證和登高作業證,好的安裝是產品質量的第二次延伸,為客戶提供優質滿意的服務,是我們雪萊人孜孜不倦的追求。
好糧倉,雪萊造,歡迎廣大用戶朋友來公司考察指導。


推薦資訊更多>>