營銷總監:靳經理 18653877118
銷售部:張經理 18653877126
郵箱: admin@cnshelley.com
shelley@cnshelley.com
銷售總部: 山東泰安長城路96號天龍國際大廈B座1405室。
工廠地址:山東省泰安市岱岳區北集坡街道海納街789號
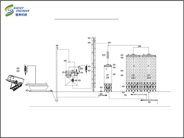
山西養殖場項目2-1200T玉米倉+1-200T豆粕倉
此項目為牧原集團山西分部養殖場項目,此項目為2臺45°全鋼錐底鋼板倉和1臺70°全鋼錐底鋼板倉,項目工作流程為糧食經糧坑輸送到提升機中,提升機輸送到清理篩中,將糧食進行清理后輸送到鋼板倉中。
鋼板倉及其配套設備具體參數
玉米鋼板倉倉容1200噸,環梁高度6.3m,直徑:10m 倉檐高:25.16m 總高:28.47m 錐頂角: 25。 豆粕鋼板倉倉容200噸,環梁高度11.5m,直徑:7.3m 倉檐高:20.956m 總高:23.32m 錐頂角: 25。 倉頂蓋板為δ1.0mm熱鍍鋅板,選用國產優質熱鍍鋅板,倉頂上設置自然通風窗、人孔、爬梯,倉頂用航空膠泥和防水墊圈密封,沿倉檐四周設有安全防護欄。
倉筒:壁板材料選用大型鋼廠的優質熱浸鍍鋅卷板。雙面鍍鋅量為275g/㎡,終完成的鍍鋅層連續、光滑、均勻,波紋板采用沖孔形式。倉板接縫處采用航空防水膠泥條密封.立柱:主要作用是增加倉的抗震性、抗側向、豎向荷載的能力,增加倉的豎向穩定性;立柱同倉壁均采用高強度特殊定制的達克羅鍍鋅螺栓連接。錐底部分主要包括錐底板,環梁,柱腳、拉筋,錐底噴漆處理。

生產及安裝

和客戶簽訂合同后,公司馬上制定生產計劃,嚴格把控各個生產環節,待生產完畢,挑選了專業的安裝施工隊伍前往山西,確保了安裝時效及質量。

全鋼錐底鋼板倉的應用
容量小的鋼板倉廣泛應用于農場,家禽廠,飼料廠,啤酒廠,塑料制品廠等。
用于儲存谷物(玉米、小麥、稻谷、稻米、動物飼料、塑料顆粒)和各種種子(葵花籽、油菜籽和甜菜種子)PP/PA顆粒,木質小球等。

推薦資訊更多>>